レイアウト・アクセス
JR尾張一宮・名鉄一宮から徒歩7分、南東方向です。
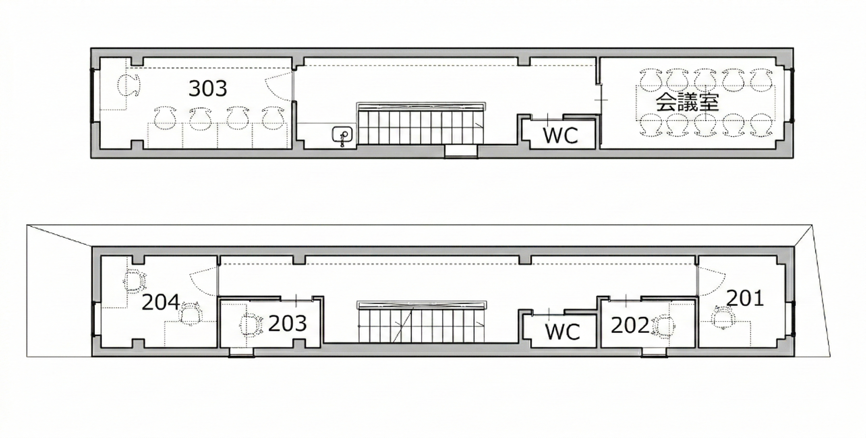
プライベートオフィス・シェアオフィスサービスの
「ほんまちBASE」 Honmachi Boat 2階、3階レイアウト
当施設の設計を担当した設計事務所での紹介事例


JR尾張一宮・名鉄一宮から徒歩7分、南東方向です。
プライベートオフィス・シェアオフィスサービスの
「ほんまちBASE」 Honmachi Boat 2階、3階レイアウト
当施設の設計を担当した設計事務所での紹介事例

